墨脱县人民政府
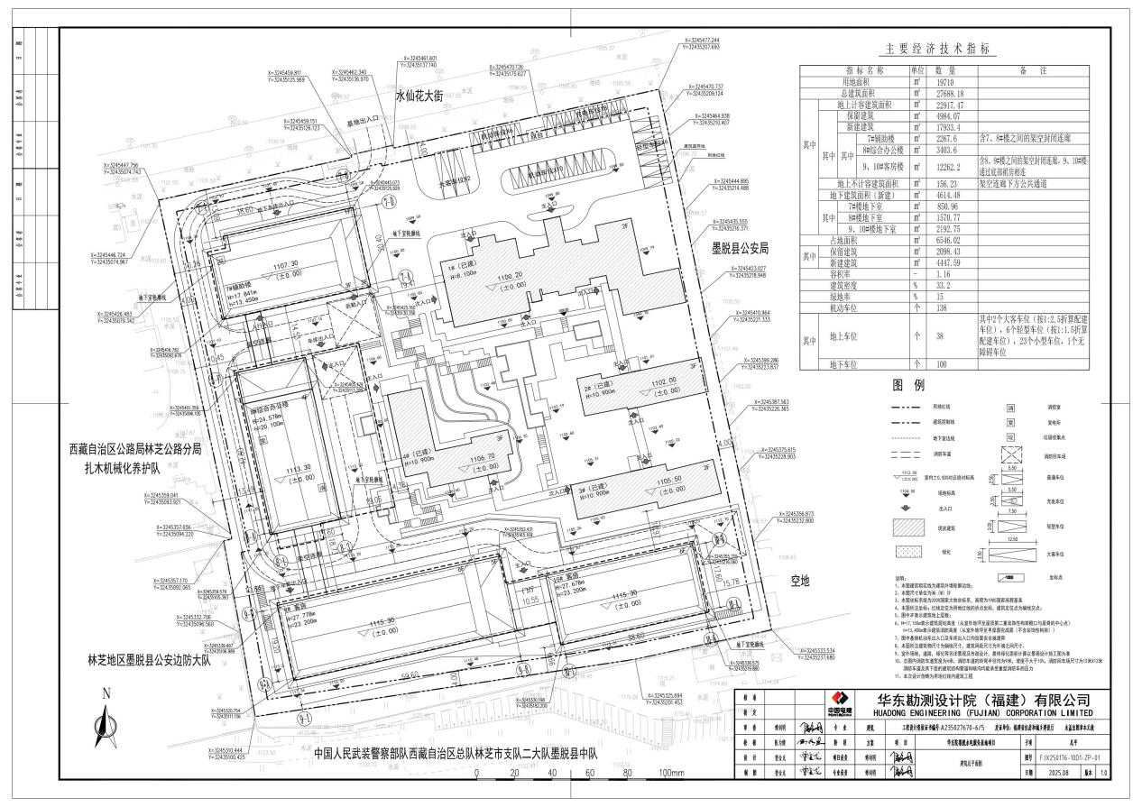
华东院墨脱水电服务基地项目位于墨脱县水仙花路南侧,总用地面积19710平方米,拟建建筑面积27688.18平方米(其中地上计容建筑面积22917.47平方米,地上不计容面积156.23平方米,地下建筑面积4614.48平方米),建筑占地面积6546.02平方米,建筑总高23.20米,停车位138个,其中地上室外车位38个,地下车位100个。(详见建筑总平面图、建筑立面效果图)现根据《中华人民共和国城乡规划法》第四十条规定,现将《华东院墨脱水电服务基地项目》方案设计进行公示,征求公众和利害关系人意见。
公示时间为2025年9月19日至2025年9月26日为止。在公示期限内,欢迎社会各界和广大人民群众讨论并提出意见和建议,若有意见,可来信、来访、来电或采取听证等方式向自然资源局规划股反映,发表意见和看法。逾期未提出,视为无异议。自然资源局规划股办公地点:团结楼1楼大厅;联系电话:18208049120。
附件:1.总平面图
2.效果图
总平面图

效果图
